schmied, kunstschmied, kunstschmiede, metallgestaltung, metall, gestaltung, eisen, holz, handwerk, von hand, moritz, moritz haeberling, häberling, uerzlikon, zürich, rekonstruktionen, restaurationen, metall, Schmieden, Schmiedetechnik, schmiedetechnisch, Schmiedehammer, Herzhammer, Warmverformen, Gesenkschmieden, Treibarbeiten, Treibhammer, Nieten, genietet, lochen, gelocht, spalten, gespalten, naturblank, Rost, rostig, Esse, Amboss, Feuer, Feuerzange, Lufthammer, Exzenterpresse, Drehbank, Renaissance, Barock, Barockblätter, Barockgeländer, Barockportal, Barocktor, Jugendstil, Jugendstilgeländer, Eisen, Eisenmöbel, Stahlmöbel, Aluminium, Alumöbel, Buntmetall, Gusseisen, Sphäroguss, Kupfer, Messing, Prägestruktur, Schweissen, Hartlöten, Gussmodell, glühen, Lochmeissel, Bronze, Bronzefigur, Blei, verstemmen, patinieren, vernickeln, Espagnoletten, Beschläge, Rekonstruktionen, Säulen, kannelierte Säulen, Kapitell, korinthisch, Veranda, Blattgold, Dachzinnen, Treppengeländer, Handlauf, Vordach, Pavillon, Leuchten, Schild, Seerosenpark, Kronleuchter, Opernhaus Zürich, Credit Suisse Paradeplatz, Cafe Restaurant Orsini, Stauffacherbrücke, Fraumünster, Gull Leuchten, Freibad Letzigraben

Freibad Letzigraben, Edelweissstrasse 5, CH - 8048 Zürich

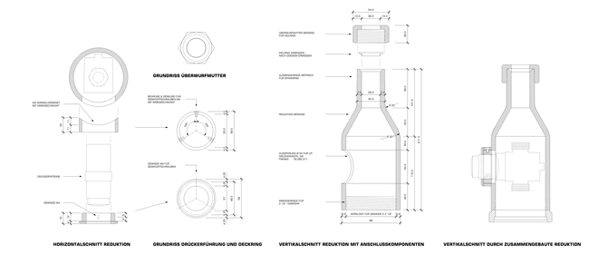
Rekonstruktion der Kaltwasserduschen

1 | 2 | 3 | 4 | 5
Ausschnitt Detailplan

Das von Max Frisch und Gustav Ammann gestaltete und 1949 eröffnete Freibad wurde 2006 einer Gesamtsanierung unterzogen. Die Duschen wurden aufgrund von Originalfotos rekonstruiert.

Da die neuen Duschen nicht mehr mit den früher üblichen Handräder auszustatten waren, sondern mit selbstschliessenden Drückerventilen, mussten komplexe Spezialkomponenten hergestellt werden, welche im Innern der rekonstruierten Reduktionen millimetergenau zusammen-
gebaut wurden.

Äusserlich entsprechen nun auch die Kaltwasserduschen wieder dem ursprünglichen Zustand der denkmalgeschützten Anlage.